
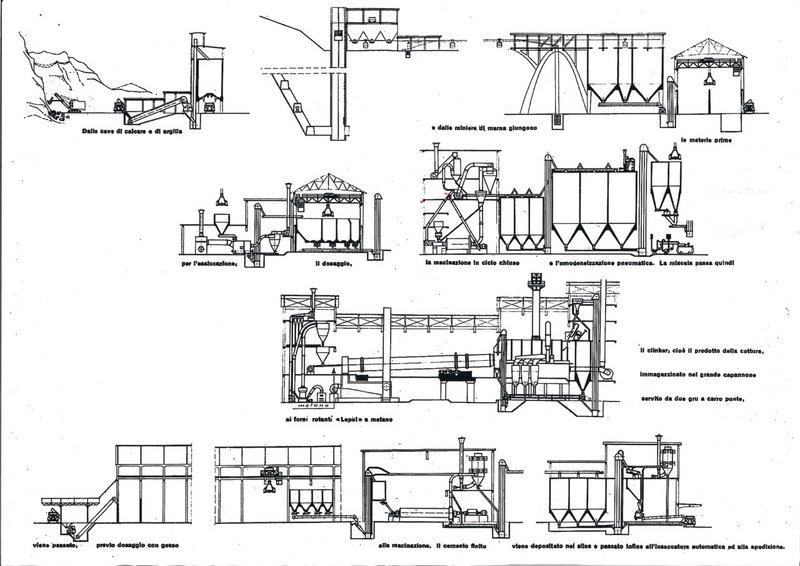
Il ciclo produttivo del cemento

LE MATERIE PRIME
Sono sostanze minerali che contengono calcio, silice, allumina e ossido di ferro. Questi componenti sono raramente riuniti nella necessaria proporzione in un solo materiale; pertanto, è necessario produrre una miscela apposita, costituita all’80% da un componente ad alto tenore di calcio (calcare) e al 20% da uno a basso tenore di calcio che contenga però una percentuale maggiore di silice, allumina e ossido di ferro (argilla o marna).
Il calcare e la marna (o argilla) vengono estratti in cava, frantumati, e trasportati in cementeria, dove vengono stoccati per essere poi impiegati nella fabbricazione del cemento.
Il CALCARE o carbonato di calcio (CaCO3).
È molto diffuso in natura e possiede una struttura cristallina finemente granulare. La sua durezza dipende dalla sua era geologica: quanto più antica è la formazione geologica da cui lo si estrae, tanto più duro esso risulta. Il suo colore è influenzato dalle miscele di sostanze argillose e combinazioni ferrose che contiene e a sua volta influenza il colore del prodotto finito; le forme più pure di calcare sono la calcite, l’aragonite e il marmo.
La MARNA (o ARGILLA).
È un particolare calcare con inclusioni di silice, argilla e ossido di ferro. Geologicamente, le marne sono rocce sedimentarie, formatesi dalla contemporanea sedimentazione del carbonato di calcio e della sostanza argillosa. La durezza delle marne è inferiore a quella dei calcari: quanto più in loro è elevato il tenore d’argilla, tanto minore è la loro resistenza. Il colore delle marne dipende dalla sostanza argillosa e passa dal giallo al grigio-nero.
LA MISCELA CRUDA
Le materie prime che provengono dalle cave vengono trasportate in cementeria e prima di essere veicolate al forno per la cottura vengono lavorate nel reparto macinazione del “crudo”.
IL REPARTO MULINI DEL CRUDO
È l'impianto predisposto per macinare finemente le materie prime fino a farle diventare una polvere di consistenza simile alla farina. In cementeria si associa proprio il nome “farina” alla miscela di materie prime finemente macinata ed essiccata e si indica il molino che la lavora come “molino del crudo” perché tratta un materiale che ancora deve essere cotto nel forno rotante.
I CORRETTIVI
Per creare la corretta proporzione tra calcio, allumina, silice e ossido di ferro, nella fase di macinazione della farina cruda, alle materie prime vengono aggiunti dei correttivi. Per esempio, per aumentare il tenore in silice s’impiega come correttivo la sabbia, per compensare la scarsità d’ossido di ferro si può ricorrere al minerale di ferro naturale o, ad esempio, alle scaglie di laminazione che provengono dalla lavorazione industriale dell’acciaio.
LA COTTURA
La “farina” viene cotta ad altissime temperature per trasformarsi chimicamente e fisicamente nel clinker. Il clinker è il semilavorato che esce dal forno e per poter diventare cemento deve avere una certa composizione chimica, ovvero contenere in diversa percentuale ossido di calcio (CaO), ossido di silicio (SiO2), ossido di alluminio (Al2O3) e ossido di ferro (Fe2O3). L’impianto di cottura si compone di 3 parti che lavorano in sequenza: la torre a cicloni, il forno rotante, il raffreddatore.
LA TORRE A CICLONI
Nella torre a cicloni (o torre di preriscaldo o di precalcinazione) avviene l’essiccazione della farina e la prima fase della sequenza di cottura, ovvero la decarbonatazione, necessaria a separare la CO2(anidride carbonica), contenuta nelle materie prime sotto forma di carbonati, dagli ossidi necessari per la produzione del clinker: CaCO3 => CaO (ossidi) + CO2 (anidride carbonica).
Nei cicloni, disposti in stadi sovrapposti dall’alto verso il basso il materiale viene forzato in un tragitto elicoidale in controcorrente ai gas caldi che fa aumentare progressivamente la temperatura della farina cruda da 100 °C a circa 900 °C. Ogni singolo ciclone (stadio) è collegato alla condotta ascendente dei gas caldi che arrivano dal forno rotante. La farina viene introdotta dall’alto e al termine della caduta attraverso i quattro stadi entra nel forno per mezzo del tubo di caduta dello stadio inferiore.
IL FORNO ROTANTE
È un cilindro in metallo rivestito all'interno di materiale refrattario, collocato in orizzontale e in leggera pendenza. La farina entra nel forno nella parte alta, il bruciatore e la relativa fiamma sono collocati in basso, nella zona di scarico. Durante la cottura il forno ruota lentamente sul suo asse e grazie alla pendenza la farina avanza all’interno del forno scivolando e rotolando lungo le pareti interne. Man mano si verificano le diverse fasi del processo di cottura: espulsione dell’acqua combinata ancora presente nella farina, dissociazione del carbonato di magnesio, dissociazione del carbonato di calcio. Quando il materiale raggiunge la temperatura di 1300 °C la calce si combina con i minerali argillosi e la farina comincia ad agglomerarsi e a formare dei noduli, in seguito alla fusione parziale dei suoi costituenti. La temperatura massima raggiunta al termine del processo di cottura si aggira attorno ai 1450 °C e consente la tempra dei grani di clinker.
IL RAFFREDDATORE
Il clinker che esce dal forno deve essere raffreddato rapidamente per stabilizzare la propria struttura molecolare e la composizione chimica.
Il raffreddatore è una griglia costituita da una serie di piastre forate sovrapposte che si muovono alternativamente per trasportare il clinker in uscita dal forno. Durante il suo passaggio sulle suddette piastre forate, lo strato di clinker viene attraversato dall'aria di raffreddamento in arrivo da una serie di ventilatori disposti sotto la griglia stessa.
IL CEMENTO FINITO
Il cemento si produce macinando finemente una miscela opportunamente dosata di clinker, gesso e altri costituenti.
IL REPARTO MULINI DEL COTTO
È l'impianto predisposto per macinare i grani di clinker con il gesso e gli additivi fino alla formazione del cemento finito.
La granulometria ottenuta con il processo di macinazione concorre a determinare le prestazioni del prodotto finale

